Nhà biệt thự diện tích vừa và nhỏ đang là xu hướng được khách hàng lựa chọn ở thời điểm hiện và và sẽ phát triển mạnh mẽ vào những năm tới. Không cần phải nguy nga, tráng lệ như những căn biệt lớn thì biệt thự vừa và nhỏ giúp không gian ở gần gũi, ấm cúng hơn đối với các thành viên trong gia đình. Và một điểm nhấn thu hút mọi ánh nhìn cho căn biệt thự vừa và nhỏ đó là có được nhiều diện tích sân vườn để trồng cây cảnh, mang lại không gian sống tươi mát.
Thông Tin Công Trình
- Chủ đầu tư: Anh Thái
- Địa điểm: Bình Định
- Diện tích xây dựng: 12x8.5m
- Loại hình thiết kế: Nhà biệt thự
- Phong cách kiến trúc: Cổ điển
- Phụ trách thiết kế: Mr. Nhật Tài
- Đơn vị thực hiện: Công ty TNHH Thiết kế và Thi công nội thất TTCOM
- Năm thực hiện: cuối năm 2023
Phối cảnh mẫu nhà biệt thự 12x8.5m Bình Định

Nhìn tổng quan từ trên xuống, căn biệt thự này nổi bật với gam màu chủ đạo là trắng, tạo nên một sự sang trọng và tinh tế trong phong cách thiết kế đơn giản và không quá cầu kỳ. Phần sân trước rộng rãi không chỉ là nơi để xe và cây cảnh, mà còn là không gian lý tưởng để tổ chức các bữa tiệc ngoài trời cùng gia đình, bạn bè và người thân.
Điểm đặc biệt của căn biệt thự là theo phong cách cổ điển, phần mái được làm kết cấu đổ mái bền vững, chắc chắn dùng để làm một khu vườn nhỏ trồng những loại cây cảnh cao cấp theo yêu cầu của chủ đầu tư. Mái cũng được thiết kế độ nghiêng hợp lý và các vị trí lỗ thoát nước cực kỳ quan trọng để tránh đọng nước trên mái, làm giảm nguy cơ ẩm mốc, thấm dột và bảo vệ tính thẩm mỹ của ngoại thất của căn biệt thự.

Hệ thống cửa chính của căn biệt thự được làm từ gỗ màu nâu, tạo nên sự tự nhiên và ấm áp. Ngoài cửa chính, hệ thống cửa sổ của căn biệt thự sử dụng chất liệu nhôm hệ Xingfa kết hợp với kính, mang lại vẻ hiện đại và sang trọng cho căn biệt thự. Điều này không chỉ tạo ra một không gian sống hiện đại mà còn cung cấp ánh sáng tự nhiên và tầm nhìn tốt cho bên trong.


Ngôi nhà được bao quanh bởi một hệ thống hàng rào chắc chắn, nhưng không gây cảm giác ngột ngạt hay bí bách nhờ sự sắp xếp cây cảnh và hoa. Phần sân trước của ngôi nhà được lát toàn bộ bằng gạch màu xám để tránh trơn trượt, giúp cho các thành viên trong gia đình có thể di chuyển một cách dễ dàng và tạo ra không gian vui chơi thú vị cho trẻ nhỏ.
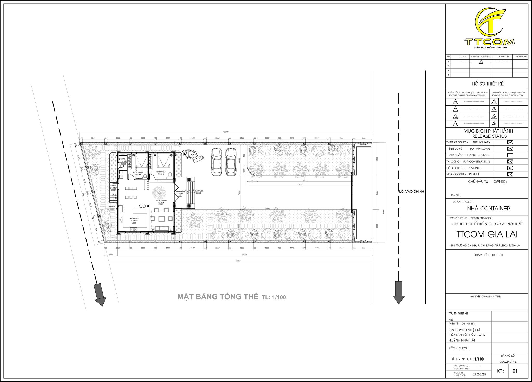
Bản vẽ của mẫu nhà biệt thự 12x8.5m Bình Định
Dưới đây sẽ là bản vẽ thiết kế của căn biệt thự đủ chi tiết dưới, mời quý vị cùng tham khảo để có thêm ý tưởng trong quá trình kiến tạo không gian sống của mình.

Mặt bằng công năng của mẫu biệt thự bao gồm: Phòng khách, phòng ăn, phòng bếp, 2 phòng ngủ và 1 phòng wc.
Từ lối vào chính, bạn sẽ bước vào phòng khách có diện tích rộng 30m2. Đây không chỉ là không gian dành cho việc đón tiếp khách mà còn là nơi mà gia đình sum họp và trò chuyện với nhau.
Việc đặt phòng bếp và phòng ăn liên thông nhau nhau, với tổng diện tích 33m2, mang lại sự tiện lợi trong việc chuẩn bị thức ăn và tạo không gian giao tiếp, đồng thời cùng nhau tạo nên một thẩm mỹ tốt.
Phòng ngủ thứ nhất, có diện tích 14m2, đã được dành riêng cho hai vợ chồng chủ nhà. Vị trí này giúp anh chị có thể dễ dàng đi ra vào, quan sát bên trong và biên ngoài nhanh chóng.
Phòng ngủ còn lại với diện tích 12m2 dành cho con gái của anh chị, cũng được thiết kế tương tự, nhưng nội thất bên trong sẽ có tông màu trang trí phù hợp với sở thích của con gái.
Với công năng vừa đủ cho số lượng người ở ít nên chỉ cần một WC là đủ và phòng WC cũng đặt hoàn toàn ở bên ngoài phòng ngủ nhằm thuận tiện cho tất cả thành viên trong gia đình sử dụng.





Lời kết
Trên đây là mẫu biệt thự với kích thước 12x8.5m mà chúng tôi muốn giới thiệu cho bạn. Nếu bạn thích mẫu biệt thự này, xin vui lòng liên hệ với chúng tôi để đội ngũ kiến trúc sư giàu kinh nghiệm của chúng tôi có thể tư vấn thêm. TTCOM Group tự hào về việc là đơn vị thiết kế và thi công các công trình nhà ở, biệt thự, nội thất trọn gói và chúng tôi cam kết hoàn thiện các dự án đúng hẹn với chất lượng tốt nhất hiện nay trên thị trường.
Viết bình luận